Menu Menu
Facebook skype Facebook zalo
0934158129

CĂN HỘ THIẾT KẾ THEO TIÊU CHÍ “CON LÀ SỐ 1” CỦA ĐÔI VỢ CHỒNG TRẺ

Khi cuộc sống ngày càng trở nên bận rộn thì thời gian dành cho các thành viên trong gia đình trở nên quý giá hơn bao giờ hết. Hiểu được điều này, 1 cặp vợ chồng đã quyết định thay đổi nội thất ngôi nhà, để mỗi khi trở về, bố mẹ và con cái luôn gần gũi và bên nhau.
Mối quan tâm lớn nhất của đôi vợ chồng khi sắp xếp trang trí nội thất cho không gian mới là tạo cảm giác tự nhiên, cởi mở, mang đến cảm hứng cho các hoạt động sáng tạo của con, đồng thời gắn kết các thành viên trong gia đình lại gần nhau hơn.
Trung tâm ngôi nhà là 1 khu vui chơi cho con kết hợp với khu sinh hoạt chung của gia đình, bao gồm 1 bộ bàn ghế lớn, 1 kệ giá sách và đàn piano. Bố mẹ có thể dạy con học, đọc sách, chơi đàn cùng con.
Nằm bên cạnh khu đọc sách vui chơi của con là một khoảng hiên nhỏ. Tại đây, thiết kế thêm một khoảng vườn xanh với đa dạng các trồng, xích đu và một cầu trượt làm đa dạng thêm không gian vui chơi và sinh hoạt của gia đình. Đặc biệt, câu cầu trượt có thể dễ dàng tháo rời khi không sử dụng tới, giúp ngôi nhà tăng thêm diện tích khả dụng khi cần.
Trái ngược với khu vực sinh hoạt công cộng, không gian nghỉ ngơi riêng tư luôn được giữ yên tĩnh và kín đáo. Bố mẹ và con gái đều có cho riêng mình không gian riêng tư và được trang trí theo sở thích cá nhân.
Không cần quá quan trọng cầu kỳ, xa hoa, trọng tâm thiết kế của ngôi nhà đặt vào niềm vui của con cái và tình cảm của các thành viên trong gia đình.
Nhà- là nơi để trở về sau những lo toan, bộn bề ngoài xã hội, là tổ ấm hạnh phúc thực sự cho những thành viên trong gia đình.
Cùng mình nhìn ngắm thiết kế độc đáo của ngôi nhà nhé!
 khong-gian-chung 

 Thiết kế nội thất gỗ chủ đạo đơn giản mà sang trọng

 phong-bep 

 Bố trí không gian và tận dụng ánh sáng tự nhiên hài hòa trong căn nhà

 phong-sinh-hoat-chung 

 Các chất liệu cao cấp làm căn nhà trở nên đắt giá

 thiet-ke-noi-that-phong-sinh-hoat-chung-dep 

 Thiết kế tối giản hiện đại mà tăng thêm phần trẻ trung, năng động

 /thiet-ke-noi-that-phong-sinh-hoat-chung

Phong cách minimalist được ứng dụng vô cung thành công

 
  phong-ngu-cho-tre 

Thiết kế nội thất đơn giản nhưng không nhàn chán tạo không gian phát triển cho trẻ

 phong-ngu-tre-em-dep 

 Màu sắc phòng trẻ em đáng yêu, tươi sáng

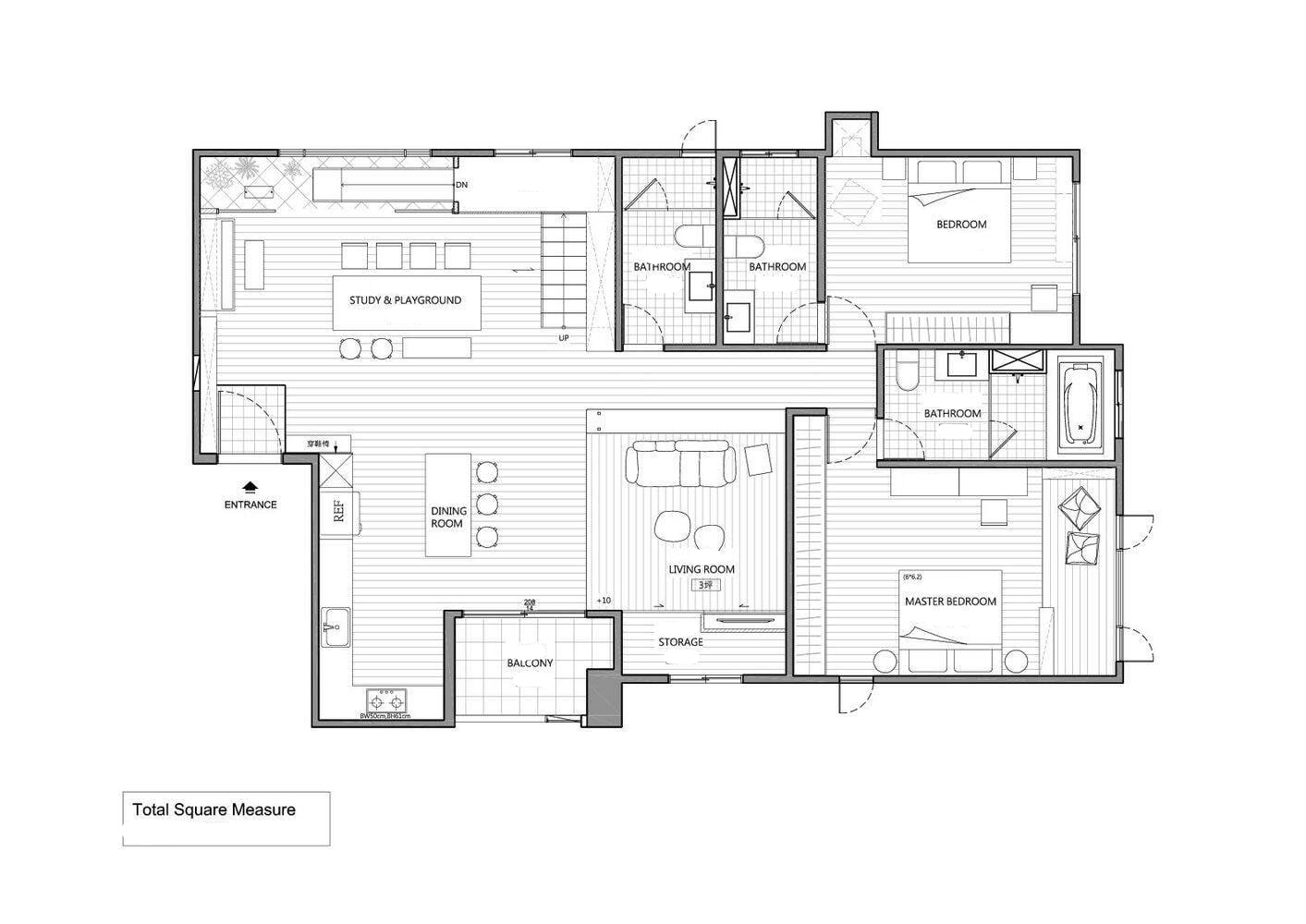
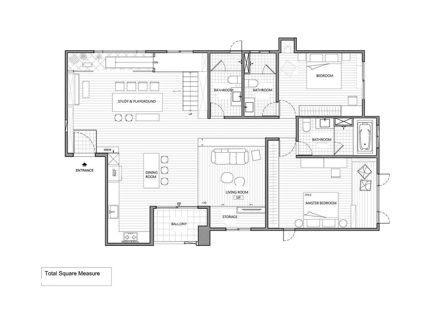
ban-ve-tong-the

Bản vẽ tổng thể thiêt kế nội thất nhà phố phong cách minimalist

Ngoài ra quý khách có thể tham khảo các mẫu thiết kế nội thất nhà phố đẹp: tại đây

Mọi thông tin chi tiết vui lòng liên hệ:

CÔNG TY TNHH Nội thất Sài Gòn:

Văn phòng Quận 1:  Tầng 6,7 Tòa nhà Friendship, số 31 Lê Duẩn, phường Bến Nghé, Quận 1, TP. HCM

Văn phòng Thủ Đức: 17/43/13 Tam Bình, KP7, P. Hiệp Bình Chánh, TP. Thủ Đức, TP. HCM

Xưởng sản xuất: 17/43/19 Tam Bình, KP7, P. Hiệp Bình Chánh, TP. Thủ Đức, TP. HCM

Điện thoại:  (028) 35 097 098 – Hotline: 0909 841 689
Email:  noithatsaigon.net.vn@gmail.com 

 

Gửi yêu cầu tư vấn & báo giá
Gửi yêu cầu
Từ khóa

Bình luận
Bài viết mới
Gửi yêu cầu tư vấn & báo giá
Gửi yêu cầu
Công trình liên quan

Công ty TNHH Nội thất Sài Gòn

Giấy phép số: GPKD số 0312167685 do Sở KH&ĐT TP.HCM cấp ngày 31/01/2012

 
Facebook  Zalo  youtube
THÔNG TIN LIÊN HỆ

n phòng Qun 1
Tầng 6,7 - Tòa nhà Friendship, Số: 31 Lê Duẩn, Phường Bến Nghé, Q.1, Tp. HCM

n phòng Thủ Đức
17/43/13 Tam Bình , KP7, P. Hiệp Bình Chánh, ThủĐức, Tp. HCM

Xưởng sn xut
17/43/19 Tam Bình , KP7, P. Hiệp Bình Chánh, ThủĐức, Tp. HCM

Email: anvila.vn@gmail.com

ĐT: (028)35 097 098
: 0934158129

 

 

Fanpage
Bản đồ
Văn phòng Quận 1
Bản đồ
Bản đồ
Bản đồ
Văn phòng Thủ Đức
Bản đồ
Bản quyền thuộc về Nội Thất Sài Gòn . Thiết kế bởi hpsoft.vn
To top
messenger icon zalo icon
call icon